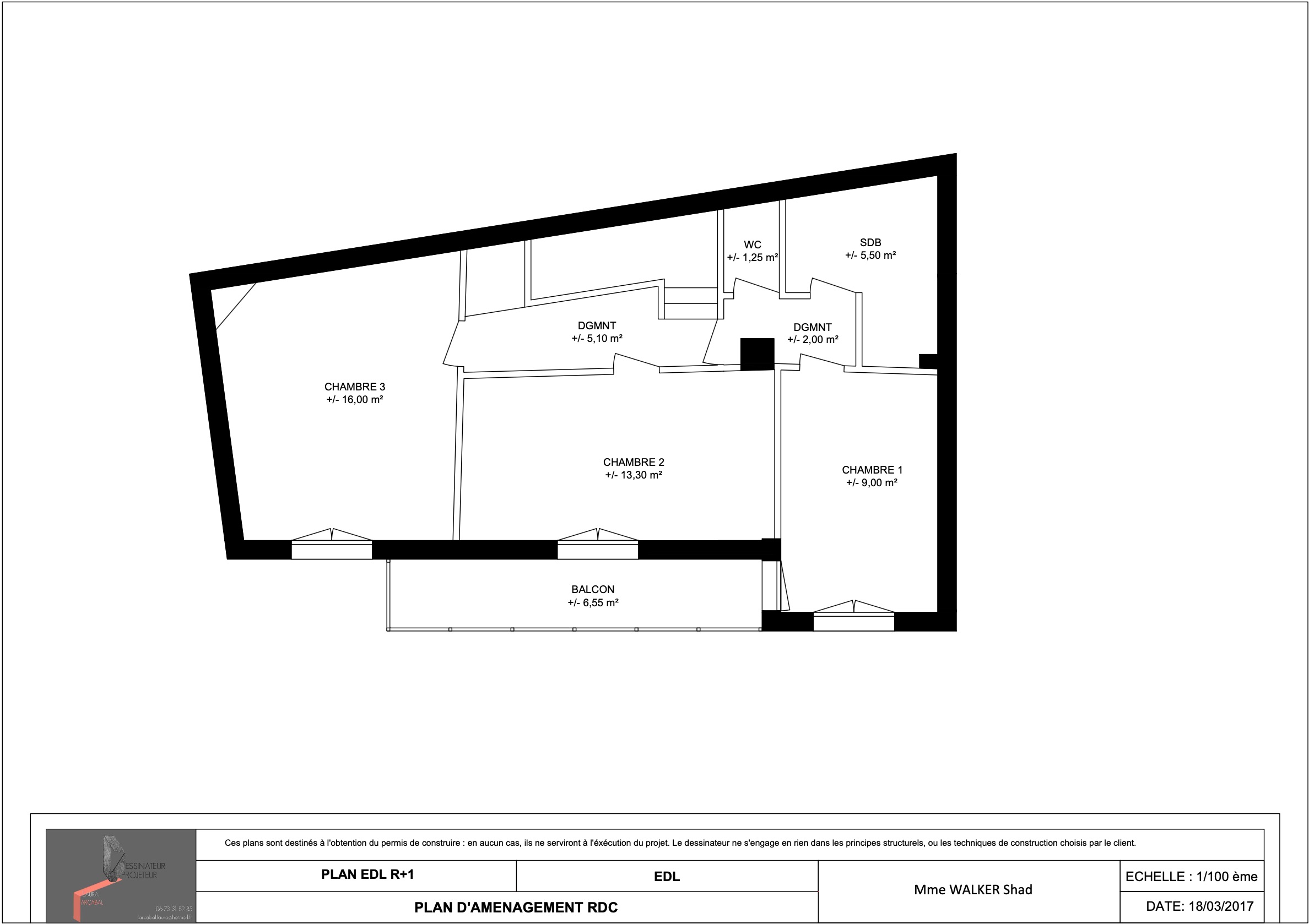
Proposition de plan pour la création d’une cuisine et d’une salle de bains ainsi que le RDC et le 1er étage. Anglet les Bleuets.
*Par mesure de confidentialité les noms des clients n’apparaisssent pas.
Proposition de plan pour la création d’une cuisine et d’une salle de bains ainsi que le RDC et le 1er étage. Anglet les Bleuets.
*Par mesure de confidentialité les noms des clients n’apparaisssent pas.