TEMERLAND

Shad Walker

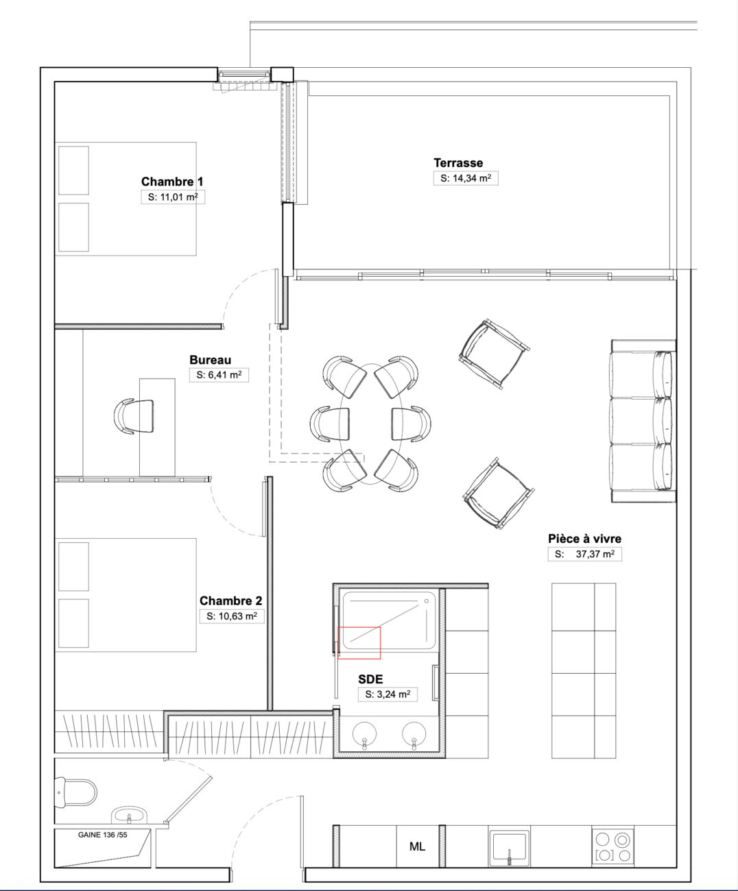
Rénovation totale d’un appartement ancien avec démolition complète de l’intérieur et de la terrasse, reconstruction de l’appartement en créant des pièces avec de nouveaux emplacements:

-Salle de bain devient une cuisine en « L »

-Ancienne cuisine devient la salle de bains

-La chambre devient une partie du salon-Salle à manger,

– L’ancien salon devient une chambre ouverte avec une verrière

-Et l’ancien dressing devient une chambre donnant sur la terrasse.

La baie vitrée du salon fait partie de celle de la chambre d’ami(e)s, et a pu permettre de proposer 6 voies côté salon et 3 côté chambre qui viennent coulisser sur la dernière voie, proposant de vivre dans cet appartement, dedans dehors. La décoration est axée sur des coloris chauds et tout particulièrement les 2 chambres dont les murs sont revêtus d’un papier de chez Elitis imitant une peau de bête, le sol est un parquet brûlé noir pour être en harmonie avec le choix du papier peint.

*Par mesure de confidentialité les noms des clients n’apparaisssent pas.

CHANTIER AVANT DÉMOLITION

AVANT POSE BAIE VITRÉE

POSE BAIE VITRÉE

DÉMOLITION

FINI

PRÉPARATIONS PLANS | RÉNOVATIONS PLAN

PLAN RÉNOVATION | TEMERLAND

PLAN RÉNOVATION | TEMERLAND PROJET VERSION III

TEMERLAND | RÉNOVATION

TEMERLAND | EDL

TEMERLAND | ESQUISSE

TEMERLAND | ESQUISSE 2ème version

TEMERLAND | CUISINE | WC